Back
$329,000

GREAT INVESTMENT FOR AIRB&B RENTALS

Celina, Clay County, Tennessee
near Dale Hollow Lake
0.57
ACRES
6
BEDROOMS
2
BATH
2380
SQ FT

Property description

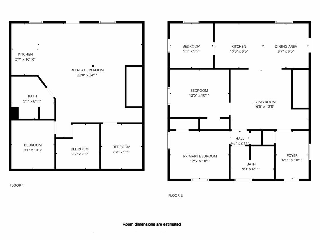
INVESTMENT POTIENTIAL FOR ANY INVESTOR FOR AIRB&B – VRBO RENTALS – TURNKEY 2380 sq ft rustic home with FULL FINISHED BASEMENT. (well maintained) 6BD/2BA, 1190 sq ft on mail level & basement level with separate entrance for each. Each unit has a full kitchen with a dining area, living room and covered patio & deck. TOTALLY FURNISHED. No restrictions, loads of wildlife, great country setting community, walking distance to Dale Hollow Lake from two marinas. PLUS: Approx 2 to 3 miles from Dale Hollow Dam, Cumberland River & Obey River. A paradise setting for a vacation home, getaway home or to live year around. Two families can live here. Ideal for the in-laws One family on the mail level and another in the basement level. Buyer to do own due diligence & pertinent information.


Details

Home Features

  • INVESTMENT POTIENTIAL FOR ANY INVESTOR FOR AIRB&B – VRBO RENTALS – TURNKEY 2380 sq ft rustic home with FULL FINISHED BASEMENT. (well maintained) 6BD/2BA, 1190 sq ft on mail level & basement level with separate entrance for each. Each unit has a full kitchen with a dining area, living room and covered patio & deck. TOTALLY FURNISHED. No restrictions, loads of wildlife, great country setting community, walking distance to Dale Hollow Lake from two marinas. PLUS: Approx 2 to 3 miles from Dale Hollow Dam, Cumberland River & Obey River. A paradise setting for a vacation home, getaway home or to live year around. Two families can live here. Ideal for the in-laws One family on the mail level and another in the basement level. Buyer to do own due diligence & pertinent information.


Information deemed reliable, but not guaranteed. Buyer to verify all information


Location

315A Bill Hunter Rd, Celina, Clay County, Tennessee, United States


SIMILAR LISTINGS

© 2026. USA Waterviews. All rights reserved.