Back
$849,000

TROPICAL LAKEFRONT OASIS with GUEST COTTAGE on 1.5 +/- acres

1.50
ACRES
4
BEDROOMS
3
BATH
2556
SQ FT
garage • waterfront

Property description

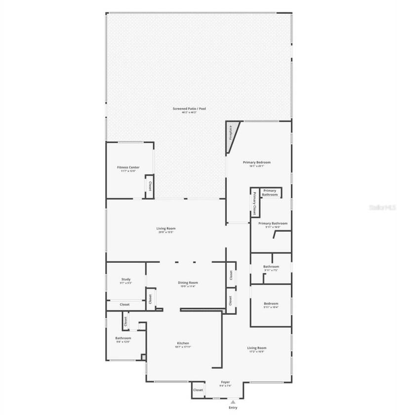
TROPICAL LAKEFRONT OASIS with GUEST COTTAGE on 1.5 +/- acres - No HOA + 2 Large DETACHED GARAGES(3 Bays) and WORKSHOP. Escape to this beautifully updated 4-bedroom, 3-bath single-story home + Cottage situated on a true lakefront lot along the private shores of Fish Lake. The main home features 2,556 sq ft of living space (5,396 sq ft under roof), thoughtfully designed with natural light, soothing colors, and warm finishes throughout. The open-concept layout flows seamlessly for everyday living and entertaining, while the home’s tasteful updates and abundant windows create a serene, welcoming atmosphere. A fully equipped detached guest cottage includes its own kitchen and offers excellent flexibility for multigenerational living, private guest accommodations, or potential rental income. Outdoors, enjoy lush, Key West-inspired landscaping with mature plumeria, tabebuia, bougainvillea, cypress trees, and natural Florida brush. A charming bench swing hangs in the shade, adding to the peaceful, resort-style ambiance. The property also includes two detached garages — one of which could be converted into additional living or recreational space. The seller already has plans for the conversion. A wooden dock structure is already in place and and is ready to be rebuilt — offering incredible potential for enjoying lakefront living at its best. RECENT UPGRADES: Kitchen Remodel with Quartz countertops. The property has 2 AC units both have been updated(2018 &2023) Kitchen Remodel with Quartz countertops. Metal Roof front half & sky lights of Main Home(2019), Metal Roof on front half(2021) RUN BY PROPANE GAS: Kitchen Stove, Kitchen Water Heater & additional Rinnai Water Tankless Water Heater(2020) & Dryer. Exterior Main Electrical Panel and Pole(2021) Pool Heater(2017) Garage Doors(2018) Asphalt Driveway (2020) New Electrical Main Panel Outside & Pole(2021) The south side of Ames Haven is scheduled to become a Cul De Sac. Tucked away on 1.5~ acres, this property offers the perfect blend of privacy, charm, and convenience — with easy access to the Turnpike, shopping, dining, and major commuter routes.


Details


Information deemed reliable, but not guaranteed. Buyer to verify all information


Location

2571 Ames Haven Rd, Kissimmee, Osceola County, Florida, United States


SIMILAR LISTINGS

© 2025. USA Waterviews. All rights reserved.